• +(598) 4223 3626

    Llamános por más información
  • info@montañes.uy

    Sarandí 483 casi Burnett • Maldonado • Uruguay
  • 🔥 Próxima apertura: locales comerciales premium en Av. Lussich

Local

4 H, Maldonado

Alquiler $ 42.000

  • 1

    Baños

  • Sup.

    41 m2

En Alquiler

ID de la propiedad : 10585

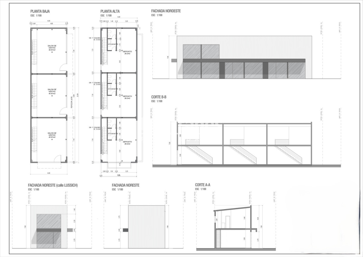
Nueva galería de locales comerciales sobre Av. Lussich, diseñada para potenciar tu negocio en una zona de alto crecimiento y gran circulación.

📐 Disponibles:
🔹 3 locales de 41 m²
🔹 2 locales de 51 m²

🚻 Baño y Kitchenette en cada local
🚗 Estacionamiento

➕ Opción de unificación de locales para mayor amplitud y flexibilidad.

🚀 OFERTA DE LANZAMIENTO
💵 Alquileres desde $U 42.000.- mensuales
💵 Locales de 51 m² desde U$S 50.000.- mensuales

📍 Ubicación estratégica sobre Av. Lussich, con excelente visibilidad y fácil acceso.

📞 Contacto
📲 Consultanos hoy mismo ☎️ 094 440 854

Características

  • Barrio  4 H
  • Vista  A La Calle
  • Supeficie m2  41
  • EntrePiso m2  28
  • Ideal Para  Comercio

Precios de Alquiler

Ubicación

Av. Lussich , 4 H, Maldonado

Solicita mas información