• +(598) 4223 3626

    Llamános por más información
  • info@montañes.uy

    Sarandí 483 casi Burnett • Maldonado • Uruguay
  • Espectacular oferta Lanzamiento!!! Locales Comerciales Centro de Maldonado

Local

Centro Maldonado, Maldonado

Alquiler USD 700

  • 1

    Baños

  • Sup.

    45 m2

En Alquiler

ID de la propiedad : 10448

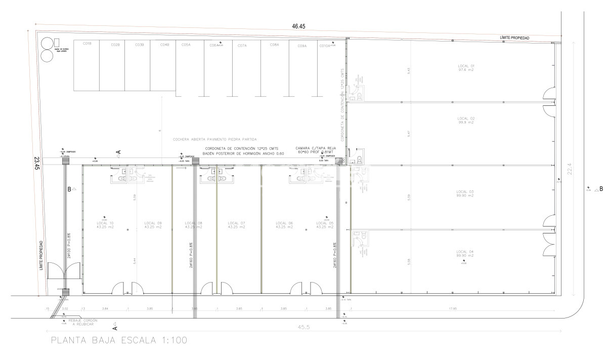
LA 18 Plaza es un nuevo y exclusivo conjunto de locales comerciales que ponemos a su disposición a partir del 1ero de diciembre.

10 locales comerciales con excelentes terminaciones, que van desde los 43 mt2 hasta los 100 mt2.
Todos los locales cuentan con baño y estacionamiento individual al interior del predio.
Existe la posibilidad de unir locales si fuera necesario, adaptándose a sus necesidades.

OFERTA LANZAMIENTO desde U$S 700 x mes!!!!!

Contáctanos hoy mismo para más información.
094 440 854

Características

  • Barrio  Centro Maldonado
  • Vista  A La Calle
  • Supeficie m2  45
  • Ideal Para  Locales Comerciales

Precios de Alquiler

Video

 Espectacular oferta Lanzamiento!!! Locales Comerciales Centro de Maldonado

Ubicación

18 de Julio esq. Dr. Edye, Centro Maldonado, Maldonado

Solicita mas información