• +(598) 4223 3626

    Llamános por más información
  • info@montañes.uy

    Sarandí 483 casi Burnett • Maldonado • Uruguay
  • Gran Oportunidad en Barrio 4H - A Estrenar Junio 2026

Apartamento

4 H, Maldonado

Venta
USD 69.000

  • 2

    Dorms

  • 2

    Baños

  • Sup.

    0 m2

  • Garage

    Si

En Venta

ID de la propiedad : 10560

Excelente oportunidad de compra en uno de los barrios con mayor crecimiento de Maldonado.
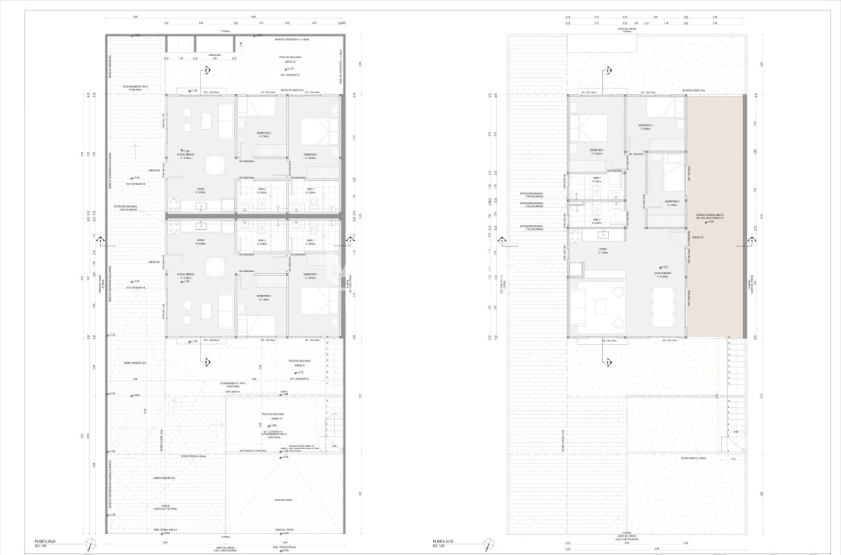
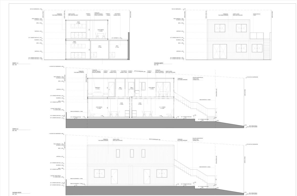
Proyecto desarrollado sobre terreno de 300 m², compuesto por 3 unidades, con diseño funcional y construcción de calidad.
Certificacion CIR MVOT

Precio contado a partir de U$S 69.000.-

Distribución:

🏠 Planta Baja: 54 mt2

2 unidades de 2 dormitorios y 2 baños

Patios privados

Parrillero propio

🏠 Planta Alta: 72 mt2

1 unidad de 3 dormitorios y 2 baños

Gran terraza

💰 Precios desafiando toda competencia
🤝 Financiación propia
🏗️ Construcción de calidad, con valores accesibles y realistas.

📅 Entrega en Junio 2026
📍 Barrio 4 H, cerca de todo y en plena expansión.

📞 Contacto
📲 Consultanos hoy mismo ☎️ 094 440 854

Características

  • Barrio  4 H
  • Vista  A La Calle
  • Orientacion  Este
  • Dormitorios  2
  • Baños  2
  • Cocina  Integrada
  • Living Comedor  Si
  • Estacionamiento  Si
  • Parrillero  Si

Gastos y Impuestos

Ubicación

4H, 4 H, Maldonado

Solicita mas información