• +(598) 4223 3626

    Llamános por más información
  • info@montañes.uy

    Sarandí 483 casi Burnett • Maldonado • Uruguay
  • Apartamento en Primera Línea Pinares

Apartamento

Pinares, Punta del Este

Venta
USD 850.000

  • 3

    Dorms

  • 3

    Baños

  • Sup.

    204 m2

  • Dep. de Ser.

    Si

  • Baño de Ser.

    Si

  • Toilette

    Si

  • Garage

    Si

En Venta

ID de la propiedad : 10252

Presentamos un exclusivo apartamento frente al mar en la Rambla Claudio Williman, parada 28 de playa mansa. Un oasis de tranquilidad y belleza.
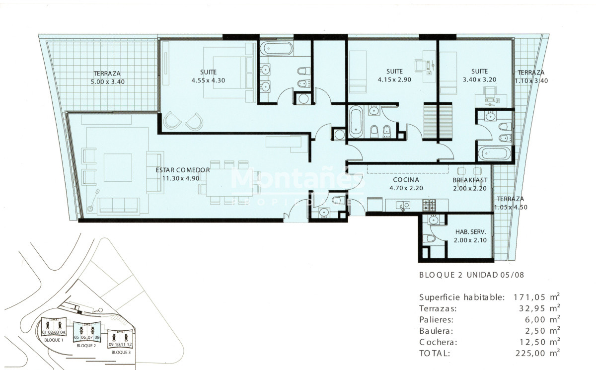
Este impresionante inmueble de 171 m2 propios, te ofrece una vida de confort y elegancia.

El apartamento cuenta con living comedor, amplia terraza con vista despejada al mar, toilette, cocina moderna espaciosa, tres lujosas suites, dependencia de servicio con baño y terraza lavadero.
Esta unidad cuenta con un espacioso parrillero de uso exclusivo, situado en la planta superior del edificio y garaje con baulera

El edificio está ubicado en un predio de 8.000 m2 y dispone de los siguientes amenities y servicios:

* 3 Halles de acceso independiente
* Estacionamiento de cortesía
* Gimnasio
* Jacuzzi con área de relax
* Dos quinchos parrilleros
* Playroom
* Microcine
* Sala de Masajes
* Piscina y Solarium
* Portería y vigilancia permanente
* Servicio de playa
* Servicio de mucamas

Contáctanos hoy mismo para más información.
094 440 854

Características

  • Barrio  Pinares
  • Vista  Al Mar
  • Frente al Mar  Si
  • Total m2  204
  • Propios m2  171
  • Dormitorios  3
  • Baños  3
  • Suites  3
  • Toilette  Si
  • Cocina  Cocina
  • Living Comedor  Si
  • Dep. Servicio  Si
  • Baño Servicio  Si
  • Lavadero  Si
  • PlayRoom  Si
  • Garage  En Subsuelo
  • Estacionamiento  Si
  • Calefacción  Losa Rad.Sectorizada
  • Parrillero  Parrillero
  • Playroom  Si
  • Serv.Mucamas  Si
  • Serv.Playa  Si
  • Piscina  Si
  • Sauna  Si
  • Gimnasio  Si
  • Vigilancia  Si

Video

 Apartamento en Primera Línea Pinares

Solicita mas información